北京礼物
“北京礼物”是北京市政府在北京奥运会后,为进一步规范旅游商品消费市场,促进旅游商品市场消费,通过政府注册北京礼物商标,以特许经营的模式,并以展示北京优秀历史文化及代表北京城市文化形象为核心,聚集优秀的产品,实现多企业合作和多产业联盟。



设计走近美丽乡村
“设计走进美丽乡村”是民盟北京市委与中共北京市农工委于2012年发起的,旨在依托北京“最美乡村”评选活动,发挥民盟内外的设计人才资源,通过调研和社会服务,提升京城乡村的环境设计、民居品质和产业发展水平,促进城乡发展一体化。“设计走进美丽乡村”活动,得到了中共北京市委、市政府、民盟中央等各级领导的高度重视,郭金龙书记、张宝文主席等给予高度关注,列入了中共北京市委支持党派开展社会服务工作的重点项目,并作为“8+1”北京市各民主党派支援门头沟区建设重点项目和北京国际设计周的重要活动。





位于北京市门头沟区斋堂镇马栏村

地处109国道83公里处的南边。村域面积13.68平方公里,村落面积19277.5亩。

其中耕地面积652亩,现以种植业、养殖业为主。

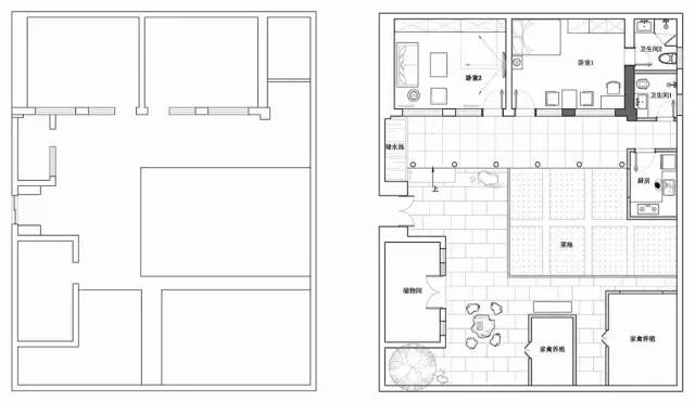
改造后-效果图




保留地方特色的同时,弥补现有居住功能的缺陷,加建外连廊使空间链接更加合理、方便。



平面图解析

北京设计学会
宋慰祖是北京设计学会创始人
北京设计学会是由从事设计及相关科技文化领域的科研、教育、开发、生产、应用和服务的工作者和单位、团体自愿结成并依法登记的专业性、学术性、非营利性社会组织,是北京市科学技术协会的组成部分。

设计是以人为本,创造使用者需求的商品和服务的科学创新方法,
设计也是将科技成果转化为生产力的重要途径,设计创新可以促进经济发展,可以实现美好生活。
红星奖
宋慰祖曾参与策划并实施了中国创新设计红星奖的建立
红星奖旨在围绕建设创新型国家的战略目标,通过每年一届的表彰中国企业的优秀设计产品,促进设计产业发展,鼓励企业创新设计,推出品牌名品,提高市场竞争力,弘扬中华民族文化,保护自主知识产权,提升国民生活品质,推动中国设计国际化。
是中国的“red dot award、IF奖”工业设计大奖。
它正逐渐成长为世界上知名工业设计竞赛中的竞赛之一。





北京DRC工业设计创意产业基地
宋慰祖曾参与策划并实施了北京DRC工业设计创意产业基地
北京DRC工业设计创意产业基地(Design ResourceCooperation)坐落于中关村高科技园区德胜科技园,总面积8000多平方米,是一个以政府宏观政策为指导,以首都雄厚的科技研发与设计创新综合实力为依托,以全市企业与设计机构为服务对象的设计资源整合与协作平台。它能够提供设计展示、信息汇集、产业孵化、人才培训、国际交流、材料查询和市场与政策研究等专业化服务。DRC整合优化首都设计资源,有利于吸纳设计产业集中,提升城市价值,使北京发挥作为政治、文化中心城市的同时,塑造创新中心的国际都市形象;DRC有利于吸纳来自社会各界的设计信息,使之成为信息集中与国际交流的平台,吸引社会各界的信息流、资金流、物流等等;DRC有利于充分利用北京的科技资源,促进北京乃至全国的制造业的发展和提升;DRC有利于形成知识型服务业的中心,是智慧和构思的研发源头,是品牌的培育中心,也是如人才、材料、色彩等各种设计要素的配置中心。



设计之都
宋慰祖认为,当前中国设计与世界顶尖水平还有差距,最主要体现在理念上。“不能把设计看成技术活儿,而是要融入创造者的思想理念。什么叫自主创新,它要把对社会、对人、对生态的需求,通过创新的思维进行创造,运用最新的材料工艺技术与民族文化、人类艺术表现力结合在一起。”

全球面临着实现经济和文化双重平衡的机遇。在实现可持续发展的过程中,"世界设计之都"通过城市间教育、科学、文化、传播和信息服务等方式,满足不同文化间的对话需要等方面凸显出核心价值。

"世界设计之都"不只是一个标识,它表达了一个城市要利用设计改变形象的决心。获此殊荣,是对城市作为创意和创新中心的认可,使城市在国际舞台上树立全球形象并参与国际设计网络。同时,也能够为北京市提供机会去展示在吸引和推动创意产业方面取得的成就,及政府与民众齐心协力共建城市的成果。






